
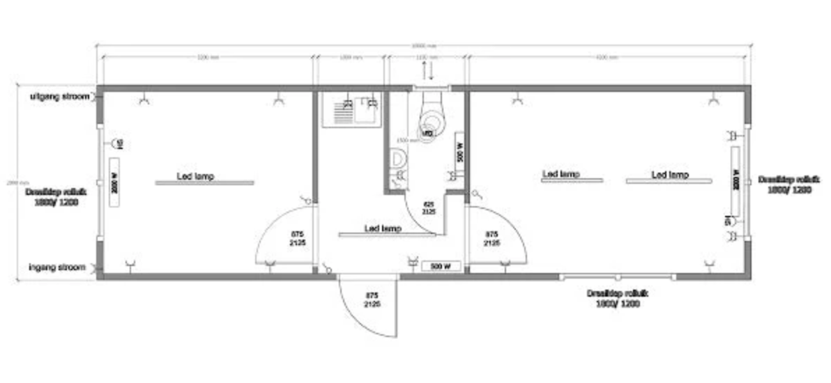
CONTENEDOR DE OFICINA 10 X 3 M
IVA incluido
€7899.00€2590.00
Agotado
Dimensiones: 10 x 3 metros.
Color: Todos los colores RAL posibles.
Aislamiento: Techo, suelo y paredes.
Suelo: Panel de suelo cementado de 22 mm, acabado de PVC.
Iluminación: Sí, LED TL.
Caja de distribución: Sí.
Calefacción: Calefacción eléctrica .
Ventanas: Ventanas oscilobatientes (2x) con persianas enrollables y doble acristalamiento .
Acabado: Unidad de primera calidad. Se ha prestado especial atención al acabado y a la elección de materiales, tanto en el exterior como en el interior de esta unidad premium. Esta unidad puede soportar un uso intensivo durante muchos años.
Aproveche nuestra modalidad de pago flexible: 50% para confirmar su compra y 50% al recibir su pedido.
Enviamos el mismo día si realiza su pedido antes de las 15:00.
Dispone de 30 días para devolver su pedido
